ALLOGGI IPES - VIPITENO (BZ)

Cliente:
IPES - Istituto per l’edilizia sociale della Provincia Autonoma di Bolzano

Team di progetto:
Architetto Nicola Isetta
Architetto Miriam Balestra

Dimensioni:
superficie lorda 1.500 m²

Calendario:
2018 concorso

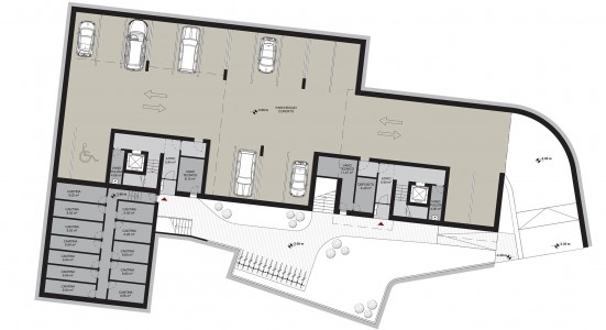
L'area di concorso è molto complessa a causa della forma irregolare, della notevole differenza di quota tra i lati sud e nord del lotto e dell'interferenza con gli edifici a sud. Obbiettivo della nostra proposta progettuale è di affrontare tali problematiche proponendo una soluzione che permetta di sfruttare al massimo il volume costruibile e, allo stesso tempo, di creare alloggi di qualità che interpretino al meglio gli standard richiesti dall'IPES.

La proposta progettuale è caratterizzata da due elementi fondamentali. Prima di tutto si è scelto di realizzare gli alloggi prevedendo due edifici compatti e regolari con due vani scala indipendenti. Secondariamente, la differenza di quota di circa 3 m tra il lato nord, lungo via Santa Margherita, e il lato sud, accessibile da via Villa, viene sfruttata per ricavare un piano seminterrato che collega i due volumi fuori-terra degli alloggi, creando un basamento contenente gli ingressi e i posti auto coperti. L'organizzazione in due volumi separati, oltre a rendere l'impatto del costruito meno pesante, permette di sfruttare in maniera ottimale l'affaccio per gli alloggi, privilegiando quello verso sud per le zone giorno. Si è scelto di dare ai due blocchi degli alloggi un'immagine solida, semplice e compatta: gli unici elementi compositivi sono i fori delle finestre e delle logge, che variano leggermente da un piano all'altro, dando movimento e carattere al disegno delle facciate. Il tetto è a falde e senza sporto in linea con la forma “pulita” del volume, le falde sono orientate in direzione nord-sud per poter essere sfruttate in maniera efficiente per i pannelli solari/fotovoltaici.